Work
About
Contact
Log
Robert Mosby / Architect
Architecture & Design Portfolio
Log
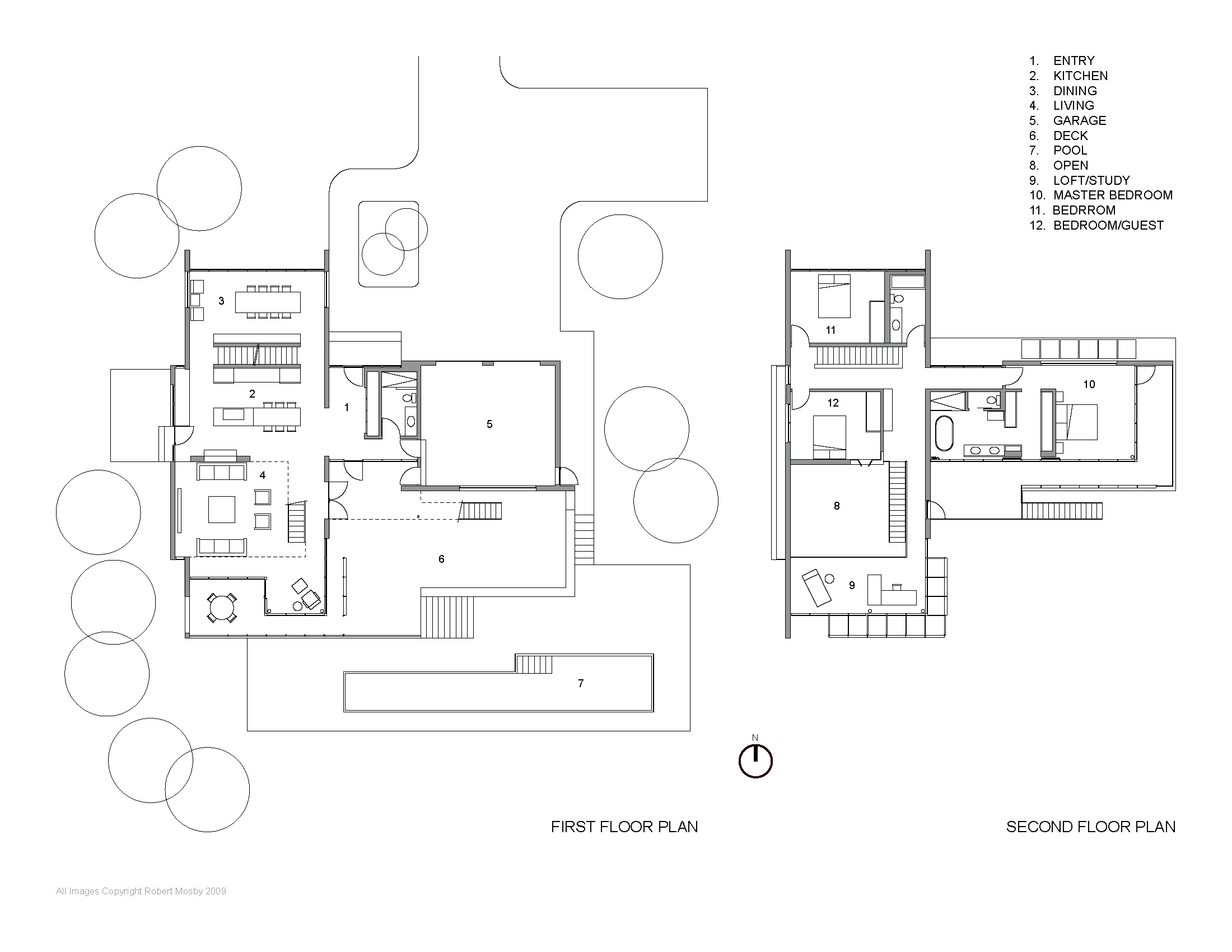
Makanda House - Illinois
Up Next:
Chelsea Hotel Renovation - New York