Work
About
Contact
Log
Robert Mosby / Architect
Architecture & Design Portfolio
Log
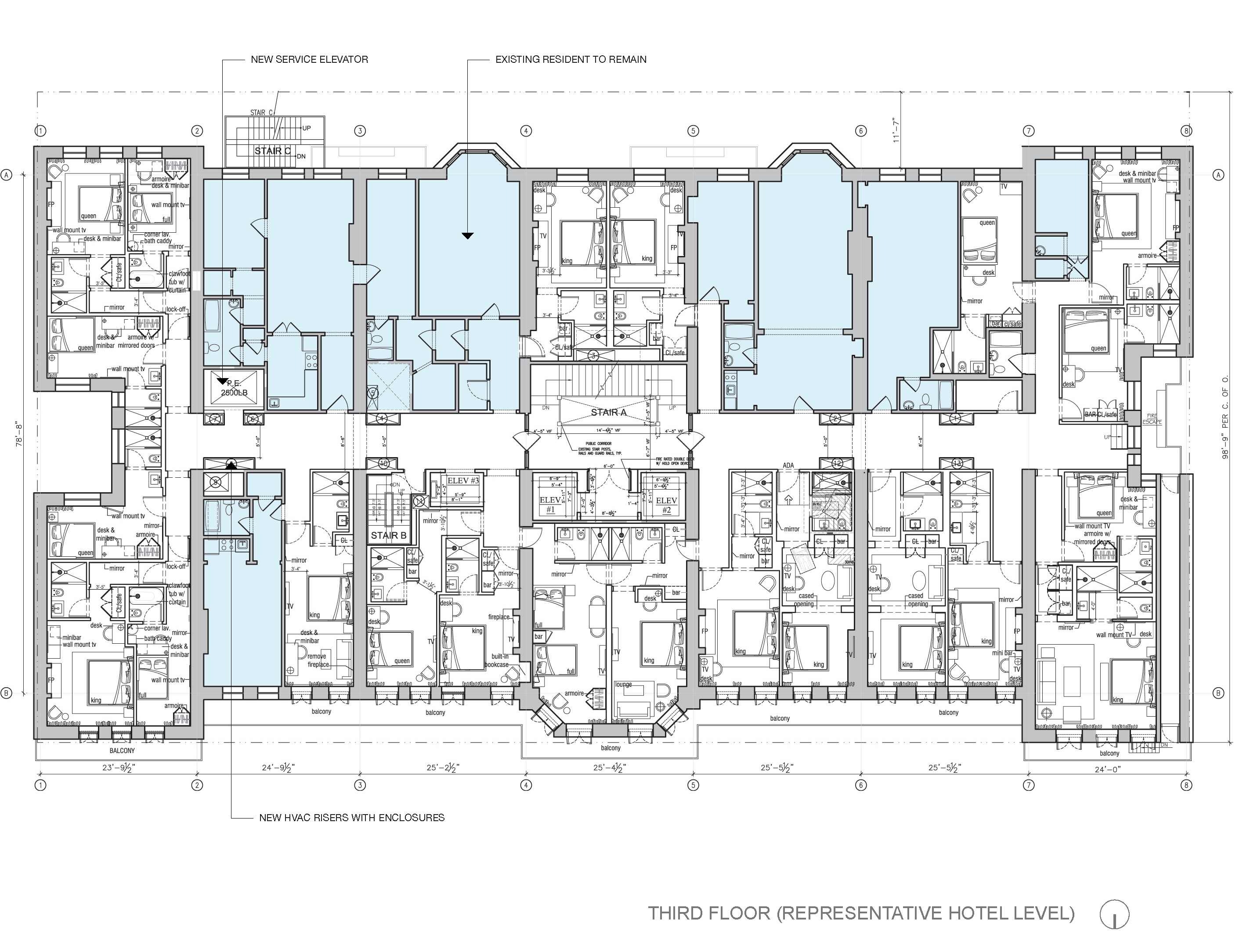
Chelsea Hotel Renovation - New York
Up Next:
14th Street Apartments - St. Louis