Work
About
Contact
Log
Robert Mosby / Architect
Architecture & Design Portfolio
Log
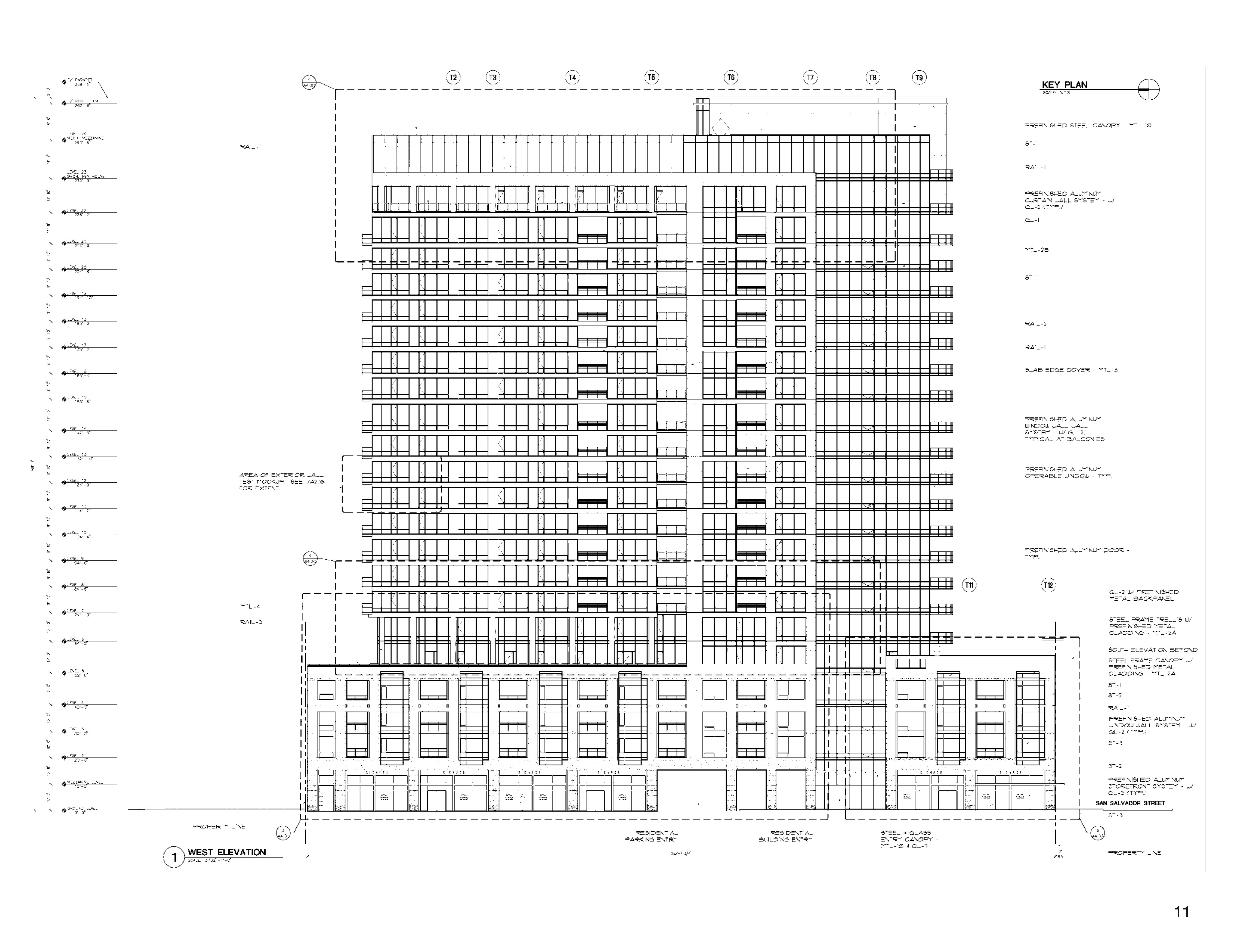
360 South Market - San Francisco
Up Next:
Block Nine, Milwaukee