Work
About
Contact
Log
Robert Mosby / Architect
Architecture & Design Portfolio
Log
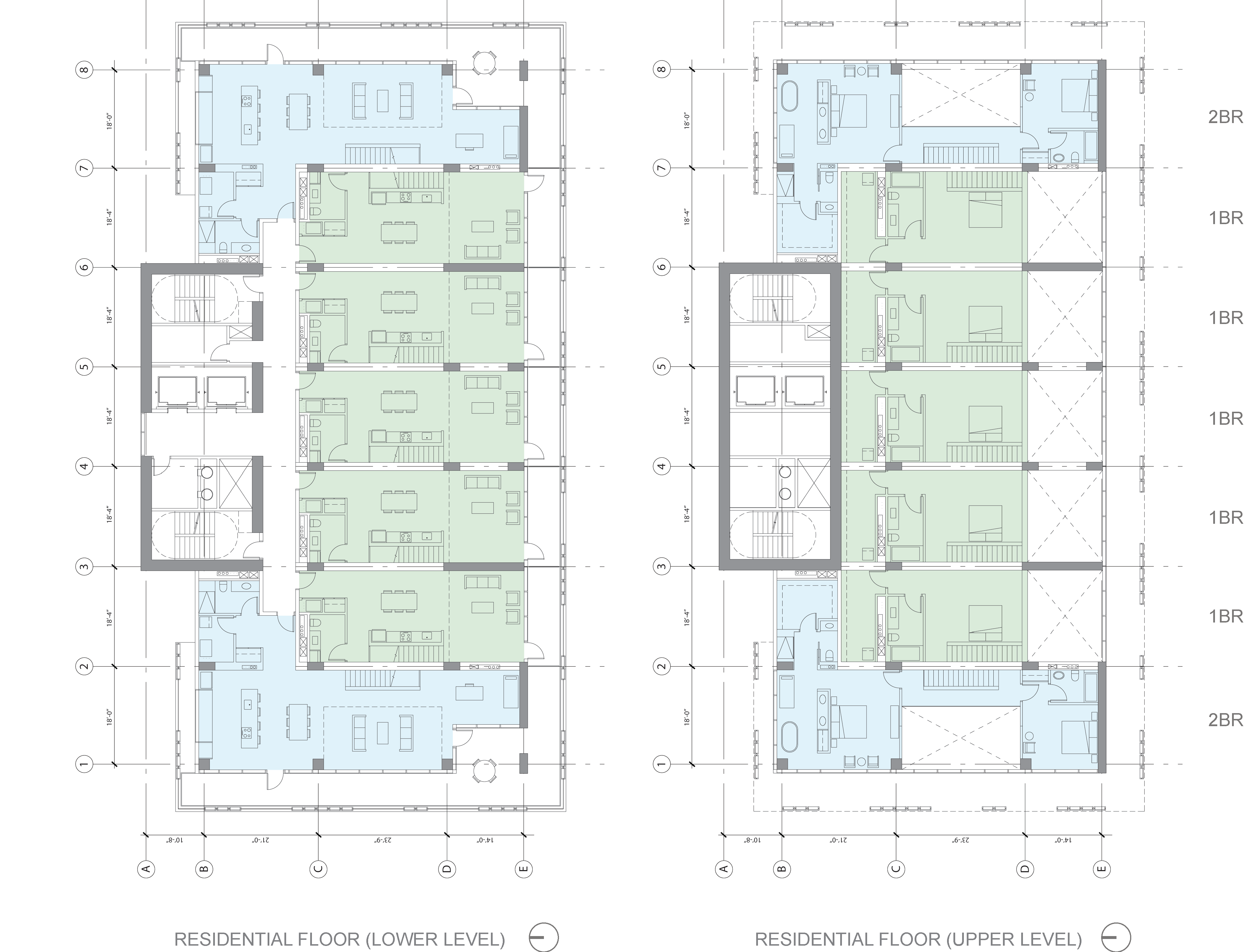
Kilbourn Avenue Lofts - Milwaukee
Up Next:
Metro East Art Center - Illinois